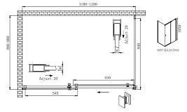
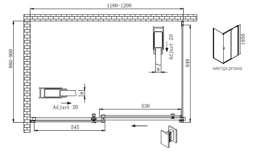
Opis produktu Kabina prysznicowa prostokątna 120X90 Kassari Prawa

Kabina prostokątna bezramowa. Pojedyncze drzwi przesuwne na metalowych łożyskowanych rolkach.
Kolor szkła przeźroczyste.
Grubość szkła 8 mm.
Listwa progowa w standardzie - istnieje mozliwość nie montowania listwy co nie wpływa na szczelność kabiny - I klasa szczeloności.
Wymiary kabiny bez brodzika: 120x90x195 cm. Grubość szkła 8 mm.Szkło transparentne - przejrzyste.
Możliwość regulacji profili do + 20mm.
Kabina Prawa
Drzwi przesuwne
Kabinę można montować bezpośrednio na posadzce lub brodziku.
Do kabiny pasują brodziki:
Wszystkie prostokątne brodziki 120x90
Kabina produkowana w Polsce.
Gwarancja 5 lat

























































